NEWS お知らせ
26.02.10
特別分譲【月8万円台~】|つくば小野川 新築モデル

訪れた方々から「天井が高いので、居心地が良くてずっと居たくなる」とご好評の小野川モデル。
この度、大好評の街角モデルを太陽光5.5kw、省エネ設備、エアコン、照明、カーテン、外構まで含んだ特別価格【4580万円 月々8万円台~】で分譲いたします。
つくばの街で、デザインも性能も妥協しない理想の暮らしを始めませんか。
全てセッティングされている特別仕様なので、すぐに入居可能♪
※お引渡し時期は要相談。
※2025年5月撮影
心地よさを生む3つの性能
POINT1:開放感を演出する天井高
天井高最強。
天井高2.9メートルの解放感

※写真はイメージです。
LDKの天井高は2.9m。
天井が高いと上からの圧迫感が減り、視界に入る壁の面積が増え、余白を感じ、開放感が増します。
限られたスペースを、一般的には ”平面”で考えがちですが、”立体”で考えた住宅です。
高い天井だからこその心地よさを実感してください。
POINT2:安心が長く続く家【耐震等級3・断熱等級6】の安心性能
やっぱり、耐震ってすごく重要なんです。
構造もデザインもあきらめない。
つくば小野川モデルの耐震等級は最高ランクの「耐震等級3」です。

※写真はイメージです。
機能的で強さが証明されたフレームだからこそ、安心して住み続けられるお家といえます。
最強の断熱材とも言われる セルロースファイバーを採用

※写真はイメージです。
断熱とは、冬なら暖かさを逃さないように、夏なら暑さが入らないように外壁や屋根や窓などから、熱の出入りを防ぐことを言います。
小野川モデルの断熱等級は6。
冬も夏も快適で、冷暖房費も抑えられるエコ設計です。
採用しているのは、天然木質繊維系断熱材の「セルロースファイバー」。その高い断熱性能から”最強の断熱材”ともいわれています。加えて、防火性能や遮音性能も高いのが特徴です。
特に、その高い遮音性は映画館やカラオケで防音材として使われており、住まいの快適性を大きく高めます。
酷暑の夏も涼しく、冬は暖か、その性能、温度差をぜひモデルハウスで体感ください!
POINT3:暮らしの質を上げる、遮音性能
-40dBの遮音性能 美術館のようなノイズレス空間
※写真はイメージです。
音を出さず、音を入れない空間を実現するために、外周面壁には映画館やカラオケで防音材として使用されるセルロースファイバーを採用しています。
-40dBの遮音性能が、外の喧騒を遮り美しい静寂を提供します。
ノイズレスな空間ならサウンドはよりピュアに深化。ご自宅で大迫力のサウンドも愉しめます。
モデルハウスで、ぜひ体感してください。
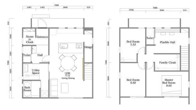
間取り

・間取り 3LDK+WIC+PlusMe Hall(ユーティリティスペース)
・敷地面積 195.14㎡(59.02坪)
・建物面積 105.98㎡(32.05坪)
・駐車場 3台
・耐震等級 3等級
・断熱等級 6等級
・長期優良住宅(認定取得済)
・熱交換換気システム(第1種換気)
・ZEH対応仕様(太陽光発電システム6.12kw)
耐震性、断熱性、使いやすい間取りなど、住まいに必要な機能を備えています。
さらに、「居心地の良さ」も大切な機能のひとつです。ですので、それらすべての機能を追求した最高の住宅を目指しています。
支払いシミュレーション 月々8万円台~

ご購入の際には、お客様に合った、資金計画をご提案させていただきます。
建てて終わりではなく、“一生付き合える家づくり”を
施工監理はコンチネンタルホーム(株)が実施。
家づくりは建てて終わりではないから、お客様にはずっと続く安心を。
建物の基本構造について、30年間の初期保証。
構造部分は60年先まで無料で点検。
建ててからも気軽にお声がけいただけるアフターフォロー体制で、お客様の将来の暮らしを支え続けていきます。
物件概要
名称 :つくば小野川モデル
所在地 :茨城県つくば市小野川11-17
交通 :つくばエクスプレス「つくば駅」まで4.5km(車で11分)
敷地面積 :195.14㎡(59.02坪)
建物面積 :105.98㎡(32.05坪)
間取り :3LDK+WIC+ユーティリティスペース
建物構造 :木造2階建て
販売戸数 :1戸
用途地域 :第一種中高層住居専用地域
引渡可能日:要相談
地目 :宅地
セットバック:無し
道路幅員 :北側6m
私道負担 :無し
建蔽率 :60%
容積率 :200%
設備 :公営水道、公共下水、東京電力
備考 :ZEH水準住宅、太陽光発電システム6.12kw、外構付き、オール電化、エコキュート、スマートキー、食器洗浄機乾燥機、TVモニター付インターホン、セルロースファイバー断熱施工
建物完成月:2025年3月
販売価格 :4,580万円(税込)※別途諸費用が掛かります
取引形態 :売主
建築確認番号: 第2024CA-0908S号
※売主 :コンチネンタルホーム株式会社 栃木県佐野市大町2979-1 国土交通大臣(9)第3970号
※施工 :コンチネンタルホーム株式会社 栃木県佐野市大町2979-1 国土交通省大臣許可(般-5)第18017号
アクセス・マップ
周辺施設
自然も教育も、暮らしの便利さもすべて近くに。
家族みんなが快適に過ごせる住環境です。
二の宮小学校(徒歩17分)
– 安心の通学距離と人気の教育環境
谷田部東中学校(自転車9分)
– 活発な校風と地域のつながり
洞峰公園(車5分)
– 緑に包まれた休日の癒しスポット
つくば駅(車11分)
– 都心アクセスと商業施設が集まる便利エリア
二の宮小学校

約1,300m(徒歩17分)
◆緑に囲まれた落ち着いた環境で、のびのびと学べる人気の小学校。
◆地域コミュニティも活発で、子育て世代に人気のエリアです。
谷田部東中学校

約2.2km(自転車9分)
◆文武両道を重んじる校風で、部活動や地域行事も盛ん。
◆自転車9分の通学距離で、、お子さまの成長をしっかり見守れる距離です。
イオンモールつくば

約3.4km(車9分)
◆約200店舗の専門店と、衣料品・雑貨・飲食・映画館など、多様なジャンルが揃っていてお買い物に便利です。
◆駐車台数は約4,000台と大規模で、車でアクセスしやすいです。
洞峰公園

約2.2km(車5分)
◆約17ヘクタールの広大な敷地に芝生広場やジョギングコースが広がる、つくば市を代表する憩いのスポット。
◆休日にはピクニックやお散歩など、家族で自然を満喫できます。
つくばエクスプレスつくば駅

約4.5km(車11分)
◆秋葉原駅まで直通約45分。都心へのアクセスも快適です。
◆駅周辺には商業施設・カフェ・病院が並び、通勤・通学から日常の買い物まで便利な立地です。
周辺環境・アクセス、すべてが整ったロケーション。
ぜひ現地で実際の暮らしやすさを体感ください。
特別分譲キャンペーン限定!のプレゼントをご用意
1200x628-1024x536.png)
さらに!公式サイトからご予約・ご成約の方限定
1200x628-1024x536.png)
資料請求・モデルハウス見学予約・お問合せ
■営業時間 10:00~16:00
■定休日 水曜日・木曜日
・ご来場希望日の3日前までにご予約くださいませ。
・2日以内のご予約の場合は、お時間の調整をお願いする場合がございます。
RECENT
-
阿見町荒川本郷|“広いLDKが欲しい”人のための 実邸完成見学会 開催日:2026年3月20日(金)〜3月22日(日)時間:10:00〜16:00(最終受付15:30)会場:茨城県稲敷郡阿見町荒川本郷(※ご予約後に詳細を […]
-
26.02.10
特別分譲【月8万円台~】|つくば小野川 新築モデル
訪れた方々から「天井が高いので、居心地が良くてずっと居たくなる」とご好評の小野川モデル。 この度、大好評の街角モデルを太陽光5.5kw、省エネ設備、エアコン、照明、カーテン、外構まで含んだ特別価格【4580万円 月々8万 […]
-
26.03.02
【新価格 残り1区画】C’s place荒川本郷Ⅰ
C’s place荒川本郷Ⅰ 土地価格を更新いたしました。 小学校まで徒歩4分 56.90坪 1190万円です。 物件の詳細はこちらをチェック👀 その他、未公開物件情報等も取り扱っています。土地からお探しの方 […]
-
26.02.15
【NEW 土地情報公開】土浦市真鍋
土浦市真鍋に新規物件を公開しました。 周辺に商業施設も豊富で生活しやすいエリアです♪ 物件の詳細はこちらをチェック👀 その他、未公開物件情報等も取り扱っています。土地からお探しの方はお気軽にご相談下さい♪
-
26.01.01
2026年 新年のごあいさつ
謹んで新年のご挨拶を申し上げます。旧年中は格別のご高配を賜り、厚く御礼申し上げます。皆様のお引き立てにより、無事に新春を迎えることができました。 本年も、社員一同、皆様にご満足いただけるサービスをご提供できるよう、より一 […]